BIA.studio
Architecture  |  Planning  |  Experience Design

     

BIA has completed more than 10 projects across the three UMass Lowell campuses since 2007, providing on-call design services through 2 house doctor assignments. Projects include planning studies, DCAMM-certified studies, feasibility studies, interior renovations, structural repairs, and finish replacements. Interior renovation projects ranging in size and complexity include labs, public assembly spaces, stairs and corridors, dining halls, offices, and locker rooms.

While House Doctor projects are generally smaller in scale, they play a critical role in meeting a college or university’s need for ongoing maintenance and upgrades of the existing facilities on campus that are vital to supporting the institution’s mission and vision for the future.

  • 2026 – West Adams Fire Protection System, $719,000
  • 2026 – West Adams Roof Replacement, $933,000
  • 2025 – West Adams Feasibility Study, $19M
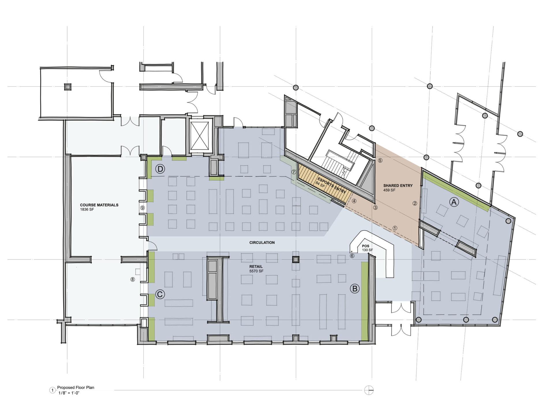
  • 2024 – River Hawk Shop Renovations, $265,000
  • 2024 – Fox Hall Lobby Accessibility Upgrades, $258,000
  • 2021 – Costello Basketball Suite, $3,495,000
  • 2021 – Ball Hall Stair Repairs, $117,500
  • 2019 – Southwick Hall Tunnel Repair, $105,275
  • 2019 – Pinanski & Weed Flooring Replacements, $393,000
  • 2019 – Fox Hall Dishroom Renovation, $198,000
  • 2012 – North Campus Parking Garage, $16.5M
  • 2007 – East Campus Parking Garage, $16M

Join Our Newsletter

Oops! We could not locate your form.