BIA.studio
Architecture  |  Planning  |  Experience Design

     

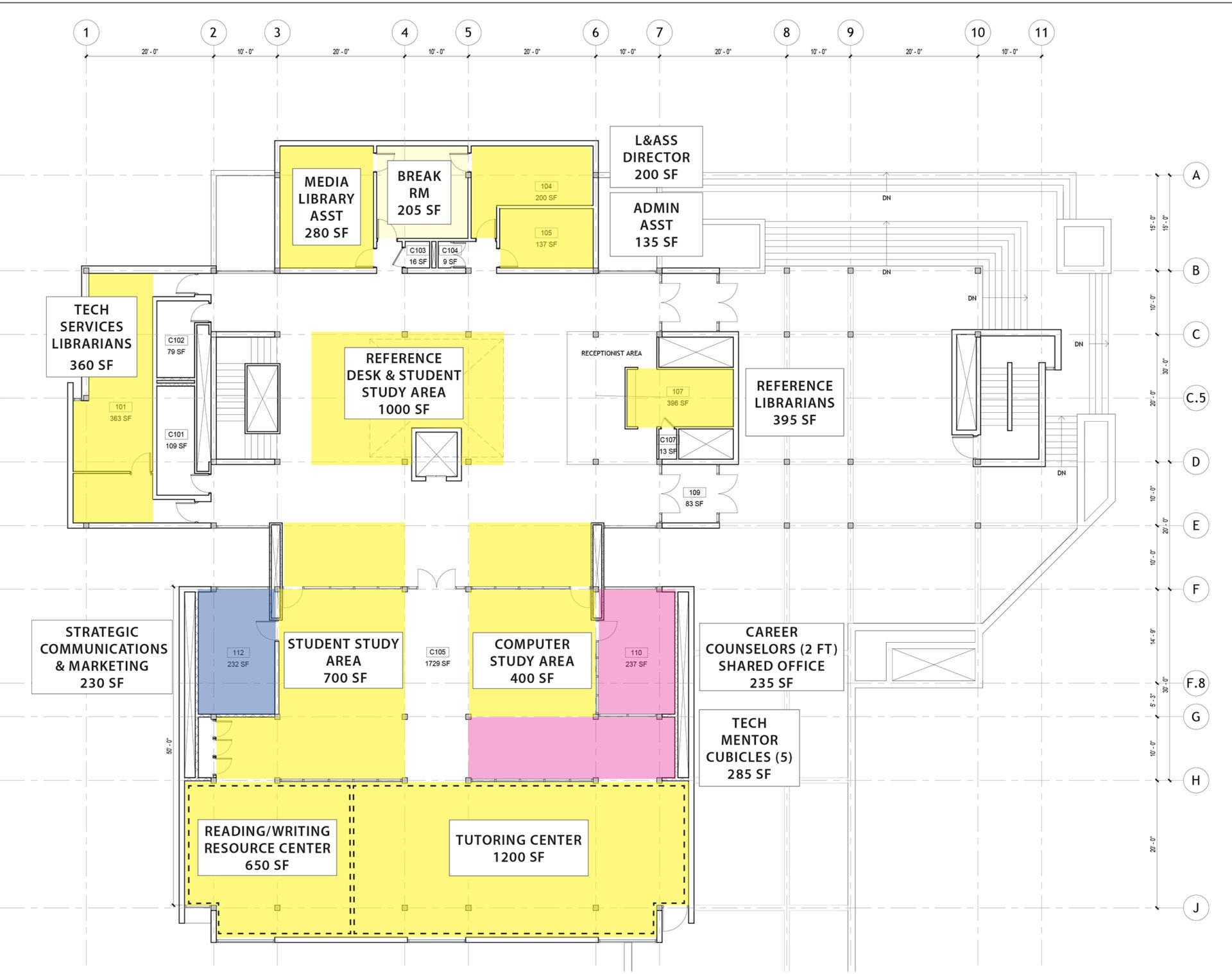
BIA has completed several projects at Cape Cod Community College since 2022, including new seating at the Tilden theater, a DCAMM-certified campus-wide building envelope study, and a planning study to consolidate student services from across campus into underutilized spaces at the Wilkens Library. Work is currently underway on several projects resulting from the building envelope study, including structural repairs, exterior entrance replacements at five buildings, and roof replacements at two buildings.

While House Doctor projects are generally smaller in scale, they play a critical role in meeting a college or university’s need for ongoing maintenance and upgrades of the existing facilities on campus that are vital to supporting the institution’s mission and vision for the future.

  • 2025 – Campus-Wide Building Envelope Study, Ph 1&2 $3M
  • 2024 – Tilden Arts Center Theater Seating, $384,000
  • 2024 – Student Services Planning Study & Furniture Upgrades, Ph 1 $400,000
  • 2022 – Wilkens Library HVAC Control Upgrades, $48,000

Join Our Newsletter

Oops! We could not locate your form.