BIA.studio
Architecture  |  Planning  |  Experience Design

     

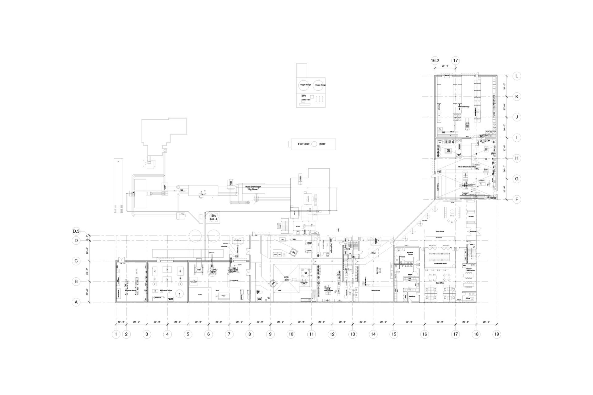
This new 37,000 SF advanced research and testing laboratory houses multi-scale testing facilities for Alstom’s Power Generation Engineering Group, whose research focuses on cleaner and more efficient power generation technologies. The building functions as a showcase for Alstom’s extensive research capabilities.

Given that making a strong first impression is required for business success, the variegated exterior panel system and industrial detailing establishes a memorable presence that advances Alstom’s brand and environmental vision. The interior has been optimized to facilitate testing procedures while also incorporating a visitor tour path and interpretive program to help Alstom tell their story to prospective customers.

Join Our Newsletter

Oops! We could not locate your form.