BIA.studio
Architecture  |  Planning  |  Experience Design

     

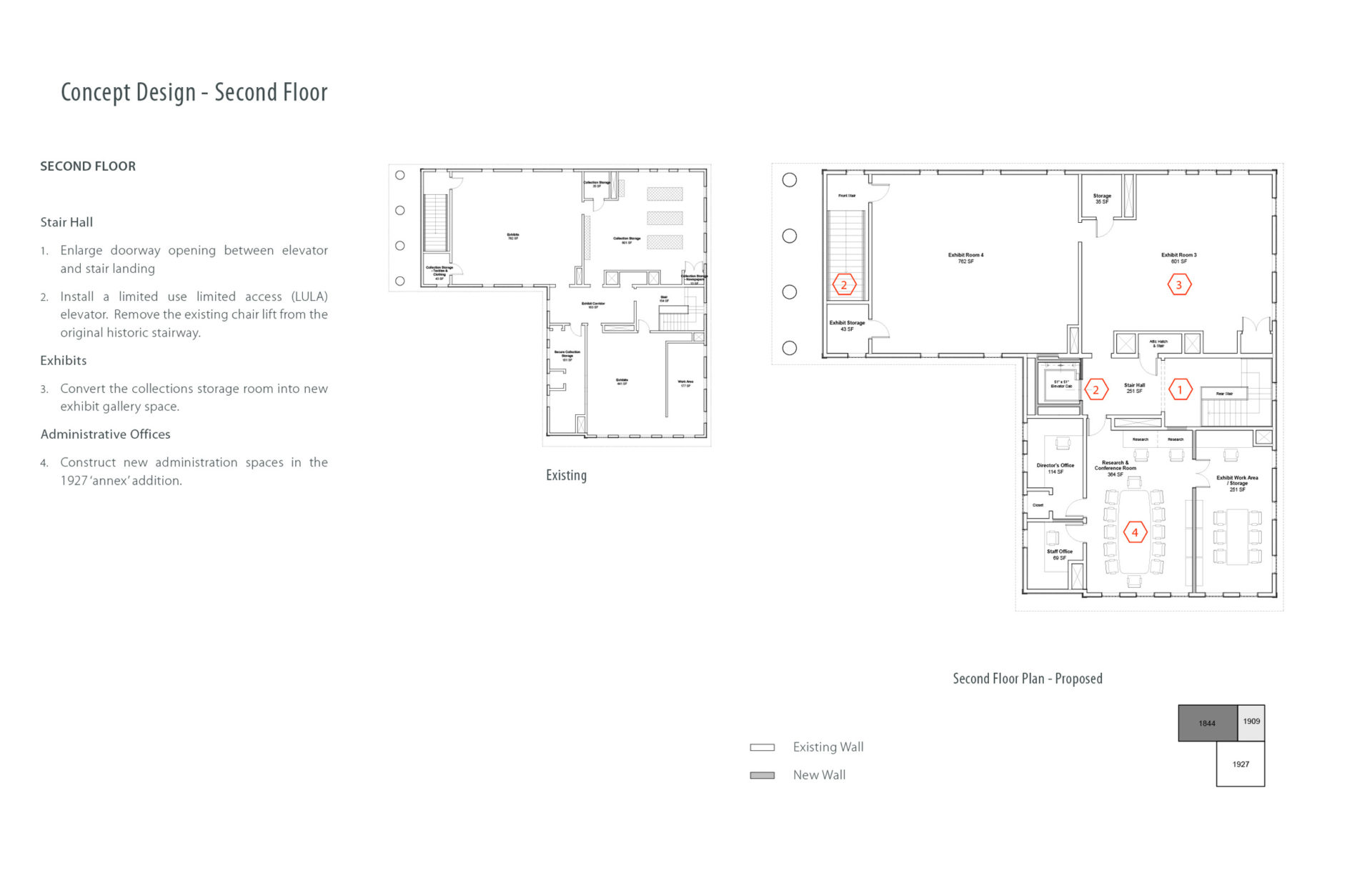
The Harwich Historical Society and Brooks Academy Museum is located in the historic seminary building in downtown Harwich. BIA developed a master plan which addresses the aging facility’s needs by improving functionality for visitors and staff with minimal intervention into the historic building. BIA’s plan restores the original portico as the main entrance to the museum, which dramatically improves the visitor experience while also allowing for the addition of a small elevator to address critical accessibility issues. The plan also expands the existing basement collections storage area, to create a secure and environmentally controlled space that is up to modern museological standards – a critical need for BAM.

Join Our Newsletter

Oops! We could not locate your form.